For Lease, For Sale $2,500,000.00 - Price | $8.00 Per Sq. Ft. - Lease Rate
PRICE REDUCED TO $2,500,000! (Originally $2,950,000)
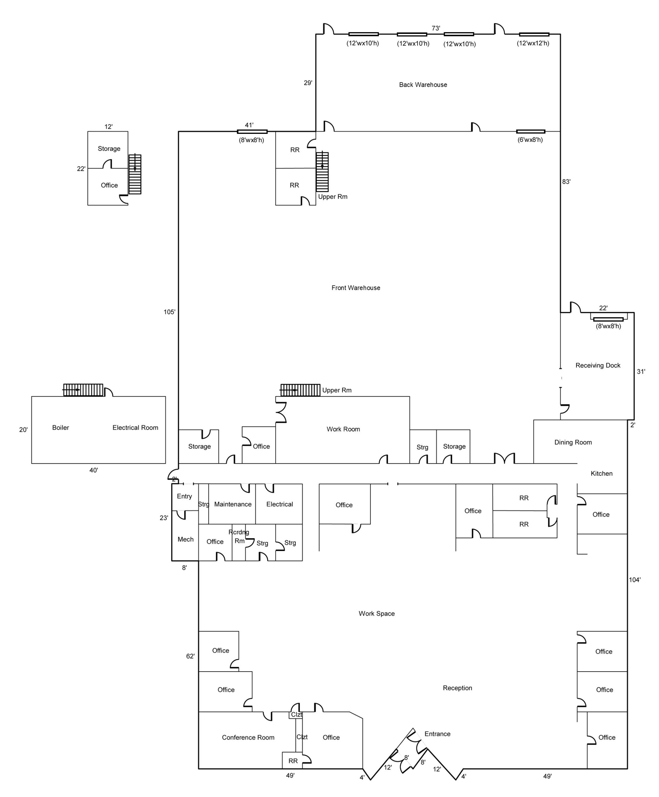
Excellent office-warehouse facility for sale or lease in Brainerd, MN! Formerly home to a newspaper print operation, this expansive and versatile property offers a rare combination of office and industrial space just off the high-traffic Washington Street corridor. The front office section features a welcoming reception area, spacious open work zones, 10 private offices, a conference room, and a kitchen/dining area—perfectly suited for a range of professional uses. The impressive warehouse portion includes a large open warehouse with one overhead door, a dedicated receiving room with loading dock access, and a secondary warehouse equipped with four overhead doors, allowing for flexible workflow and logistics. Whether you’re looking to expand operations, relocate your business, or invest in a multi-functional property in a central Brainerd location—this property delivers outstanding accessibility, and potential.
- Purchase Price: $2,500,000.00
- Lease Price (Sq. Ft): $8.00
- Directions: From Hwy 210/371 intersection in Baxter - East on Hwy 210 (Washington St) approx. 1 1/4 miles - North on NW 5th St - Property is the SE corner of NW 5th St and James St
- Building Size Total (Sq. Ft): 27,402
- Building Size Main (Sq. Ft): 26,338
- Building Size Upper (Sq. Ft): 1,064
- Lot Size (Sq. Ft): 79,805
- Lot Size (Acres): 1.82
- Lot Dimensions: Bldg: 140’ x 370’ and Land: 140’ x 200’
- Road Frontage: Bldg: 140’ on James Street and 370’ on NW 5th Street and Land: 200’ on NW 6th Street
- Lease Size Total (Sq. Ft): 27,402
- Lease Size Main (Sq. Ft): 26,338
- Lease Size Upper (Sq. Ft): 1,064
- Original Price: $2,950,000.00
- Price Note: PRICE REDUCED TO $2,500,000! (Originally $2,950,000)
- Lease Type: Triple Net
- Property Tax Year: 2025
- Annual Property Tax: $46,268.00
- Property Features / Assets: Building: 27,402 SF Total; Main Level: 26,338 SF Total (Office Area: 12,319 SF & Warehouse Area: 14,019 SF); Upper Level: 1,064 SF (264 SF & 800 SF)
- Water: City
- Sewer: City
- Heating: Natural Gas Mini Boilers
- Cooling: Air Handler - Electric Roof-Top Units
- Electric – Amps: 800
- Electric – Phase: Three
- Lighting: Fluorescent
- Year Built: 1989
- Construction: Poured Concrete
- Foundation: Concrete
- Roof: Flat-Rubber Membrane
- Exterior: Poured Concrete & Stucco
- Ceiling Height - Office: 10'
- Ceiling Height - Warehouse: 16'
- Overhead Doors: 1 (12’H x 12’W) Back Warehouse; 3 (12’H x 10’W) Back Warehouse; 1 (8’H x 8’W) Front Warehouse; 1 (6’W x 8’H) Interior between Warehouses
- Loading Docks: 1 (with 8’W x 8’H OH Door)
- Indoor Sprinklers: Yes
- Bathrooms: 5
- Parking Spaces: Bldg: 17 Paved Parking Spaces in Front and 11 Paved Parking Spaces in Back and Land: 53 Paved Parking Spaces
- Neighboring Businesses: Located near MADD, Kaiser & Associates PA, Lakes Area Cosmetics Bar, Lake Country Dental, Caribou, Wendy’s, Wells Fargo, The UPS Store, Nail Studio, Walgreens, Access North, Parlor Hair Salon, Retirement Designs, US Army Recruiting, Rainbow Therapeutics, Tree of Life Holistic, First Peoples Insurance, Brainerd License Office, VA Clinic, Tanner Motors, McDonalds, Good Year Tire, Dominos, Subway, Westgate Mall, Westport Shopping Center, Dollar Tree, plus numerous others.
- Traffic Counts: 24,865 (2023) on Washington St (Hwy 210), 6,926 (2023) on NW 4th St, 5,622 (2022) on Jackson St and 861 (2023) on NW7th St
- MLS #: S6745900 & L6745995
- CC File #: 1789
- Zoning: TN-2 - Traditional Neighborhood 2
- PID#: Bldg: 41040790 and Land: 41040764
- Legal Description: Bldg: Lots 1 thu 6 inclusive, Block H, and the adjacent S’ly 1/2 of vacated Robert Street, West Brainerd and Land: Lots 11 & 12 Block P and then N 20 ft of Lot 7 Block H, the S’ly line of which shall run parallel to and 20 ft from the N’ly line of said Lot 7, and the vacated portion of Robert Street lying between Lot 7 Block H & Lot 12 Block P, & S 30 ft of the N 1/2 of vacated Robert Street adjacent to Lot 1 Block P















































