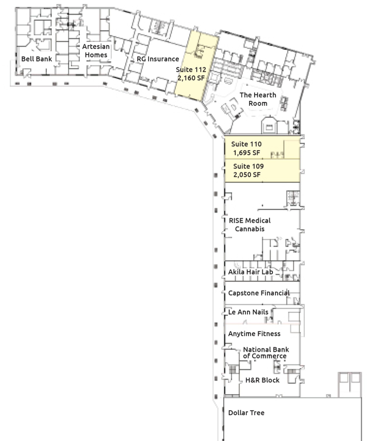
14091 Baxter Drive (Suite 112), Baxter, MN 56425
For Lease $12.00 Per Sq. Ft.
The Westport Center has turn-key retail or office space available for lease. Move or expand to this highly visible, high traffic location where you can benefit from the synergistic neighbors within the center and also from numerous popular retailers nearby.
- Lease Price (Sq. Ft): $12.00
- Directions: From Hwy 210/371 intersection in Baxter - East on Hwy 210 - Left (north) on Baxter Drive - Center is on the left (west)
- Road Frontage: Along Hwy 210 (Washington Street) and Baxter Drive
- Lease Size Total (Sq. Ft): 2,160
- Lease Size Main (Sq. Ft): 2,160
- Lease Type: Triple Net
- Operating Expenses Year: 2025
- Operating Expenses - Total: $5.00/SF/YR
- Water: City
- Sewer: City
- Heating: Natural Gas Forced Air
- Cooling: Central Air - Electric Roof-Top Units
- Lighting: Fluorescent
- Year Built: 1984
- Construction: Steel Frame
- Foundation: Concrete
- Roof: Flat Rubber Membrane
- Exterior: Cultured Stone & Stucco
- Bathrooms: 2
- Parking Spaces: Shared paved parking lot out front and additional employee parking on the back side of center
- Adjacent Tenants: Bell Bank, Artesian Homes, RG Insurance, The Hearth Room, RISE Medical Cannabis, Akila Hair Lab, Le Ann Nails, Anytime Fitness, Riverwood Bank, and H&R Block
- Neighboring Businesses: Located near Dollar Tree, Pizza Hut, Casey’s, Westgate Mall (Harbor Freight, Dunham’s Sports, Ashley Furniture, Rafferty’s Pizza, Planet Fitness & others), Lakes 12 Theatre, Northland Arboretum, Brothers Motorsports, Super One, Perkins, McDonalds, Wendy’s, Caribou, Blackridge Bank, plus numerous others.
- Traffic Counts: 27,888 (2021) on Hwy 210 (Washington St) and 7,100 (2019) on Excelsior Rd
- CC File #: 1512
- Zoning: C2-Regional Commercial District













