For Sale $275,000.00
PRICE REDUCED TO $275,000! (Originally $299,000)
Discover a rare investment opportunity in Historic Downtown Brainerd. Step into the rich history and vibrant potential of this iconic commercial building, ideally located in the heart of Downtown Brainerd. Dating back to the early 1900s, this storied property was home to Murphy’s Dry Goods for over half a century, followed by the well-known Iron Hills Pawn Shop—a beloved local staple. Now, the stage is set for a new chapter. With its prime location and timeless charm, this is the perfect opportunity for a visionary entrepreneur to reimagine the main level retail space and bring fresh energy to the community. Upstairs, a spacious unfinished apartment offers the flexibility to live on-site or generate passive income through rental. Whether you’re an investor, business owner, or history enthusiast, this building offers a unique blend of legacy and opportunity. Don’t miss your chance to own a piece of Brainerd’s past—while shaping its future.
- Purchase Price: $275,000.00
- Directions: From Hwy 210 (Washington Street) / Hwy 371 (S 6th Street) intersection in Brainerd - South on S 6th Street 1 Block - East on Front Street - Building is on the South, just after S 7th Street
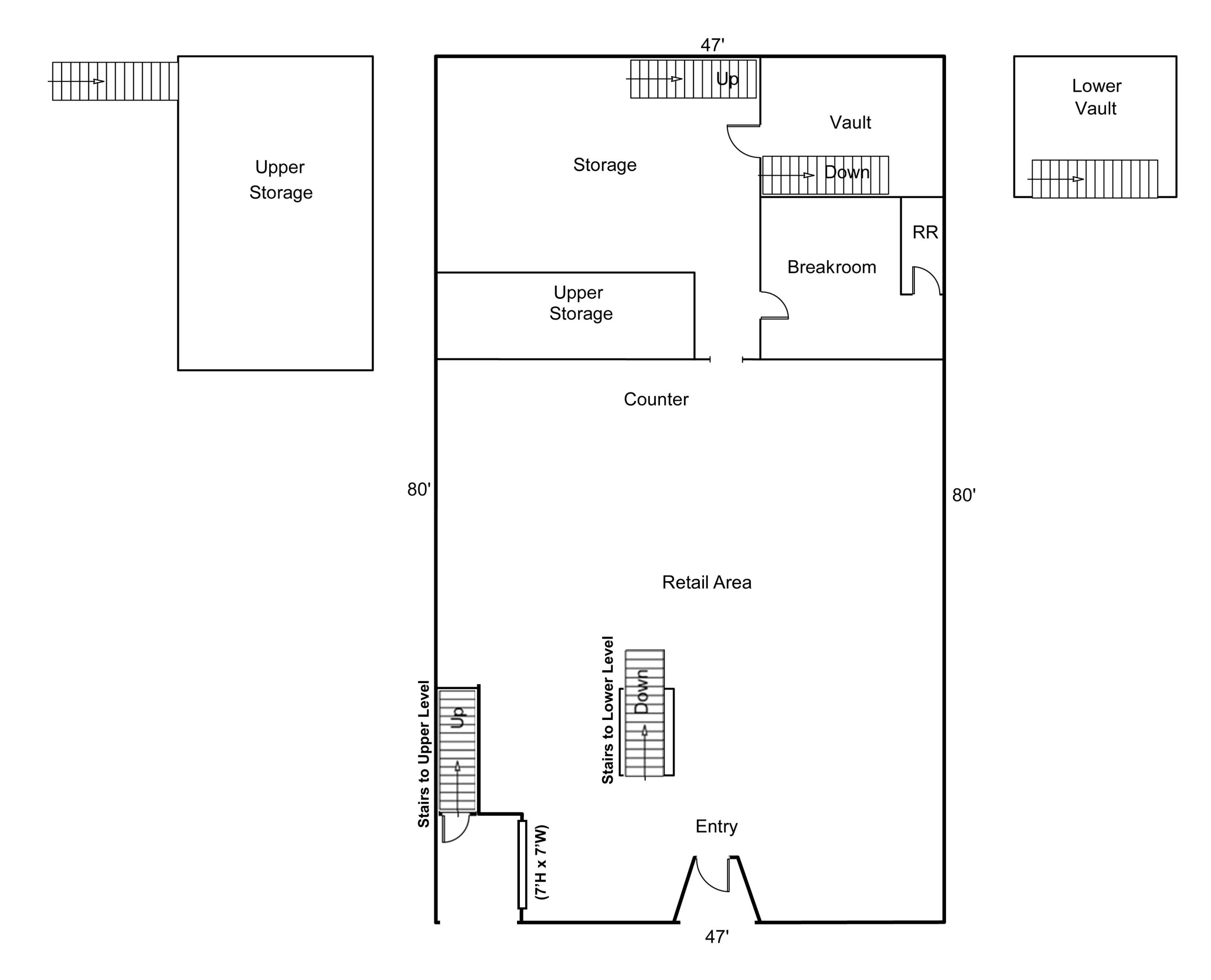
- Building Size Total (Sq. Ft): 9,688
- Building Size Main (Sq. Ft): 3,724
- Building Size Upper (Sq. Ft): 2,444
- Building Size Lower (Sq. Ft): 3,520
- Lot Size (Sq. Ft): 3,726
- Lot Size (Acres): 0.09
- Lot Dimensions: 80' x 46.58'
- Road Frontage: 80' on Front Street
- Original Price: $299,000.00
- Price Note: PRICE REDUCED TO $275,000! (Originally $299,000)
- Property Tax Year: 2025
- Annual Property Tax: $2,584.00
- Property Features / Assets: Main Level: 3,724 SF (Retail & Storage); Upper Level: 2,444 SF (Apartment); Lower Level: 3,520 SF (Unfinished Basement Storage)
- Water: City
- Sewer: City
- Heating: Natural Gas Forced Air
- Cooling: Central Air - Electric Roof-Top Unit
- Electric – Amps: 125
- Electric – Phase: Single
- Lighting: Fluorescent
- Year Built: 1909
- Construction: Concrete Block
- Foundation: Concrete Block & Stone
- Roof: Flat - Rubber Membrane
- Exterior: Stucco, Brick & Steel Siding
- Ceiling Height: Main Level: 14'; Upper Level: 10'
- Overhead Doors: 1 (7'W x 7'H) Service Door on Main Level
- Bathrooms: Main Level: 1; Upper Level: 1 (No Fixtures)
- Parking Spaces: On-Street Parking Only
- Neighboring Businesses: Located in downtown Brainerd, nearby businesses include the American Legion, Lakes Lash, Atlas Title, Elysium, Bargains on 7th, Bell Creations, Big Jays, Bridge of Harmony, The Gallery, EL Menk, Brekkens, Food Co-op, Thairapy, Front Street Cafe, Blue Oyster, plus numerous others.
- Traffic Counts: 21,370 (2023) on Washington Street (Hwy 210), 4,700 (2019) on S 8th Street, 11,028 (2023) on S 6th Street and 1,429 (2023) on Laurel Street
- MLS #: 6707813
- CC File #: 1781
- Zoning: MS - Main Street
- PID#: 41241475
- Legal Description: Part of Lots 16 thru 18 inclusive Block 41 desc as follows; comm 22 ft 5 inches E from the NW corner of Lot 18 on N line of Lot and bounded by a line running S 80 ft then E 46 ft 7 inches, then N 80 ft to a line of Lot 16, then W along N line 46 ft 7 inches, to the place of beg. Town of Brainerd & First Addition to Brainerd


































